Δείτε όλες τις ανακοινώσεις-νέα
Εκπαιδευτική επίσκεψη στο ΙΚΕΑ πραγματοποίησαν σήμερα 15-12-2025, οι μαθητές της ειδικότητας Σχεδιαστών Εσωτερικών Χώρων του τομέα Εφαρμοσμένων Τεχνών.
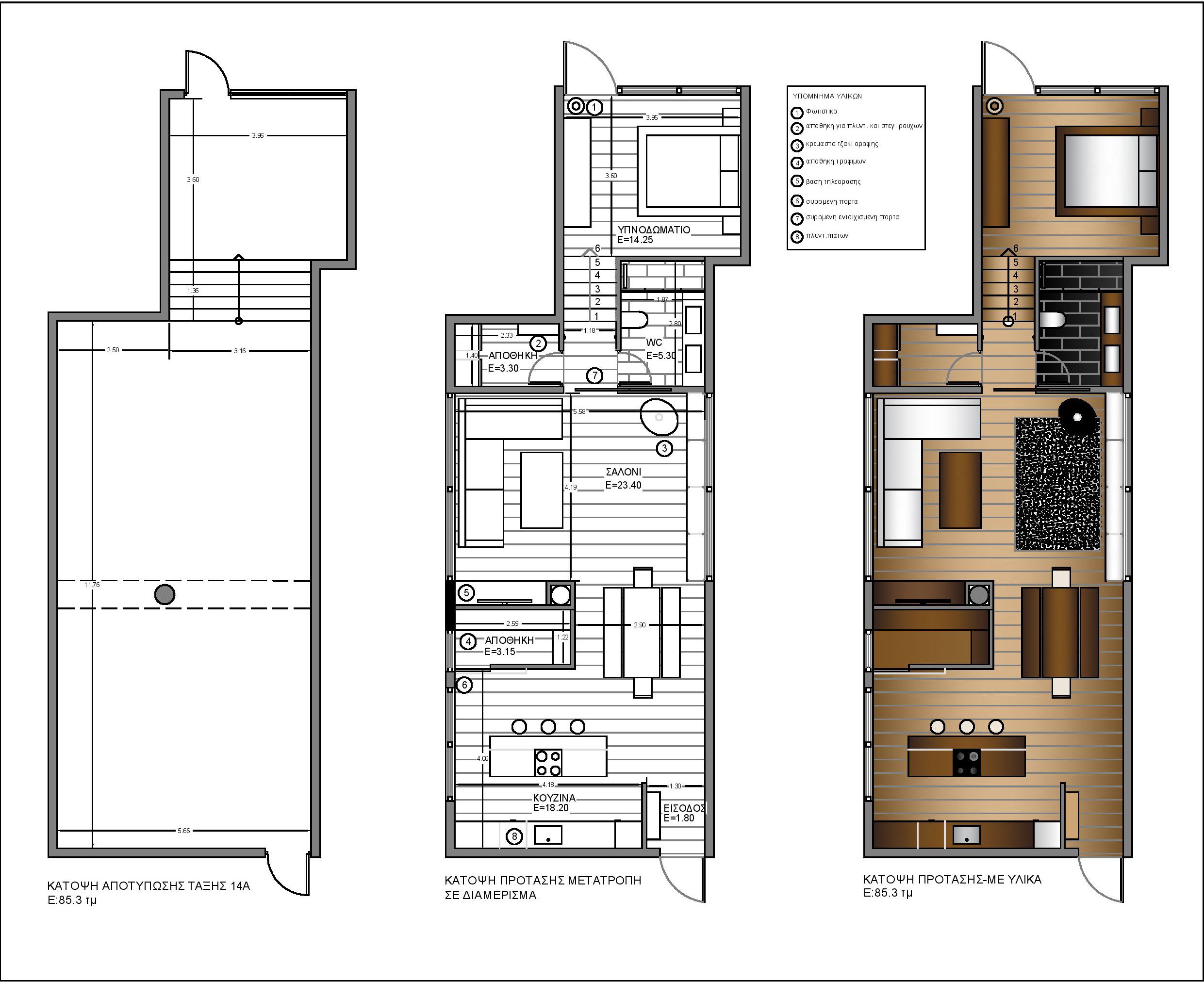
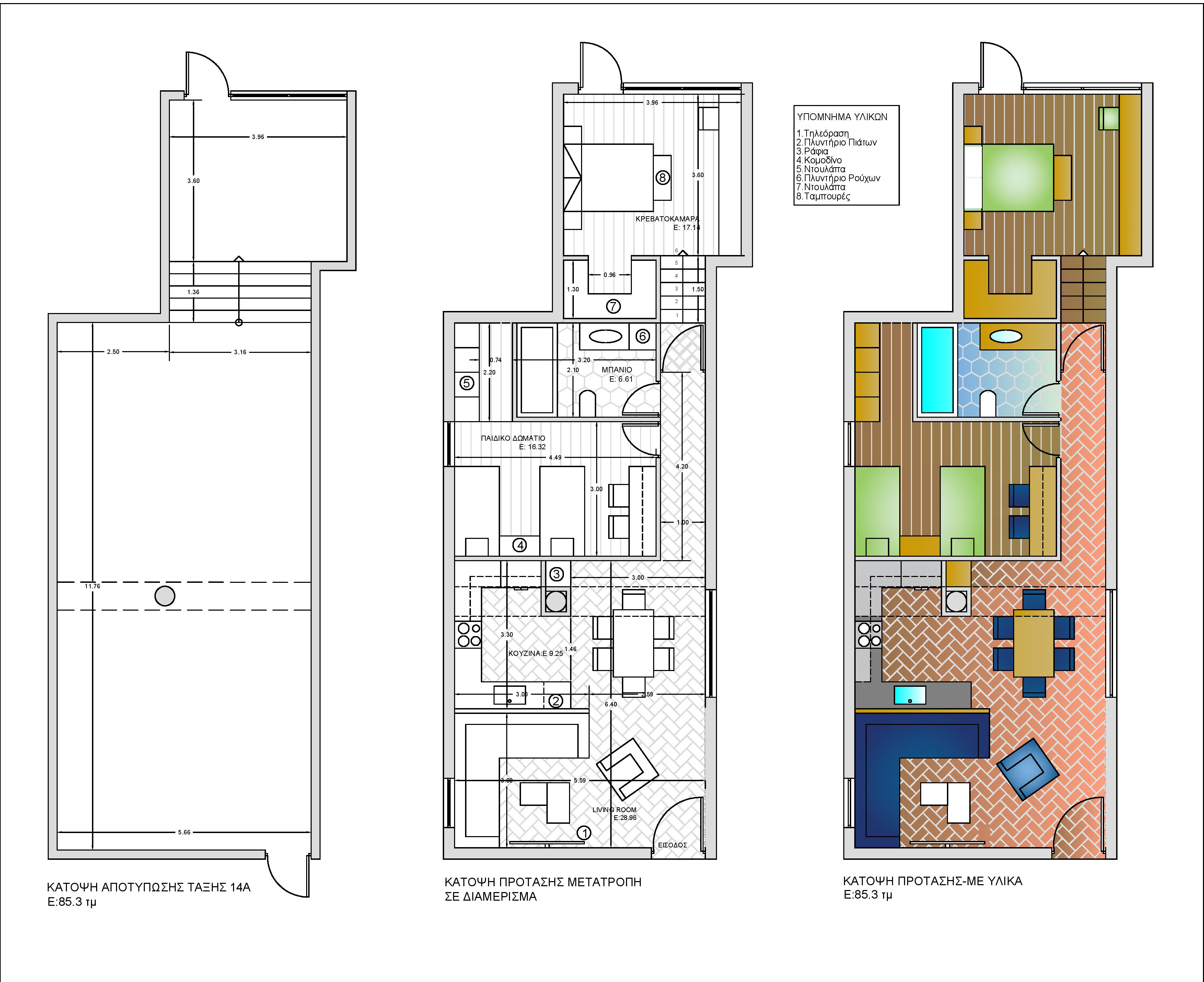
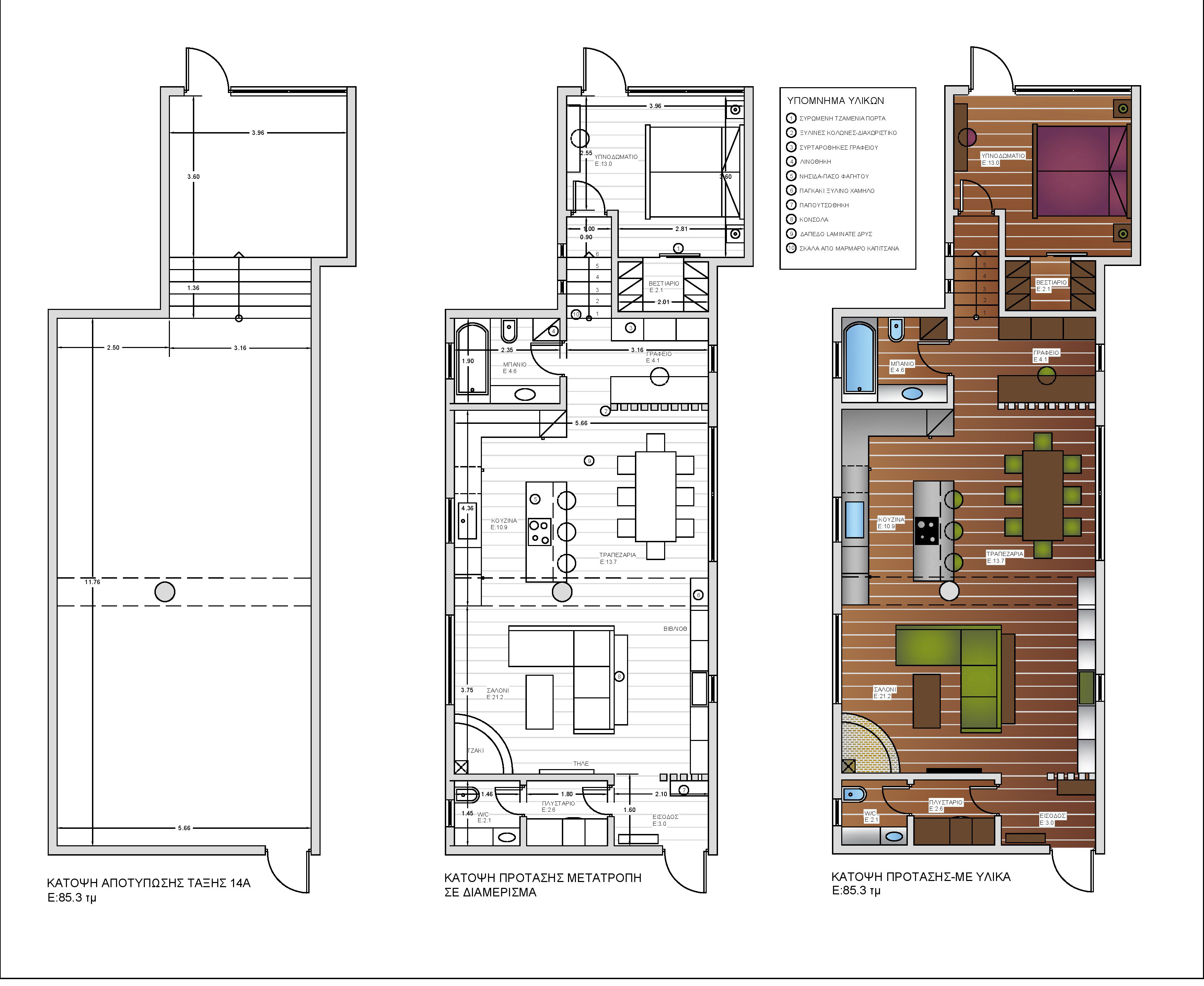
Η διδακτική επίσκεψη στο ΙΚΕΑ των μαθητών της ειδικότητας των Σχεδιαστών Εσωτερικού χώρου της Γ' τάξης του Τομέα Εφαρμοσμένων Τεχνών είχε ως σκοπό να επιλέξουν οι μαθητές την επίπλωση για τον χώρο που αυτά σχεδίασαν. Είναι μέρος του project: "Μετατροπή μια σχολικής τάξης σε σύγχρονο διαμέρισμα".
Τα παιδιά συνόδευσαν στην εκπαιδευτική επίσκεψη οι καθηγήτριες τους, κα Λιάρου Ελένη και κα Κουβέλα Παναγιώτα.
Δείτε σχέδια των παιδιών πιο κάτω:
και φωτογραφίες απο την επίσκεψη:
Στοιχεία επικοινωνίας